営業時間:10:00 ~ 18:00 水曜定休 0120-948-614

浦安市北栄4丁目 ルイシャトレ浦安ノーブルフォート 明和地所中古マンション 物件情報

0

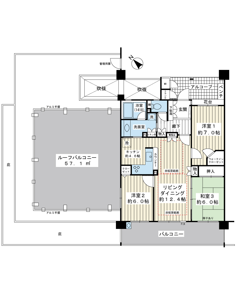
広さと開放感を享受する、8階ルーフバルコニー付き角住戸の住まい。

お部屋の特長は、何といっても約57.1㎡の大型ルーフバルコニー。その先には、東京スカイツリーを望む眺望が広がります。専有面積80㎡超のゆとりある3LDKは、全室6帖以上の居室を確保。南面三室の間取りで陽当りも良く、室内は丁寧にお使いで、新調・交換された設備もございます。

2022年和室畳表替。リビングエアコン新設。食洗機(内蔵型ではない)新設。2020年キッチンコンロ・水栓交換(キッチン、洗面台)。キッチンクロス貼替。

家事動線に配慮された2WAYキッチン、2WAY洗面室は、日々の生活を支えます。リビングには床暖房があり、寒さ知らずの温かな空間です。ウォークインクローゼットやトランクルームなど、充実の収納スペースも魅力です。

ペットと一緒に暮らせるマンションです(規約有)。

東小学校まで歩いて10分。ふたば保育園まで歩いて5分で、子育て世帯にも暮らしやすい住環境です。

ライフインフォメーション

浦安市立東小学校 790m
浦安市立浦安中学校 480m
浦安市立ふたば保育園 360m
ファミリーマート浦安北栄四丁目店 120m
ジョーシンアウトレット浦安店 430m
業務スーパー新浦安店/河内屋酒販新浦安店 500m
スーパー木田屋北栄店 480m
ダイエー浦安駅前店 800m
浦安病院 410m
浦安市役所 1210m

担当:中山晴雄

資金計画や住宅ローンのご相談も承っておりますので、どうぞご安心してお問い合わせください。お住み替えのご相談は、地域に精通した明和地所にお任せください。

資料請求購入

LINE@からのご相談・お問い合わせもできます!お気軽にお使いください♪

友だち追加数

広さ約57.1㎡のルーフバルコニー付き角住戸。80㎡超の3LDK。ゆとりある居室と充実した収納スペース。床暖房など設備充実。 (間取) 「ルイシャトレ浦安ノーブルフォート」。開放的なルーフバルコニー付きの住戸。 (外観)
ルイシャトレ浦安ノーブルフォート中古マンション
価格
5,200万円
間取
3LDK

共益費・管理費
13900円
所在地
千葉県浦安市北栄4丁目
交通
東京メトロ東西線 浦安駅 徒歩14分 
JR京葉線 新浦安駅  バス(消防本部前 乗7分 停歩5分)
築年月 2001/05 新築/中古 中古
面積 80.50m² 計測方式 壁芯
バルコニー 16.60m² 向き 南西
建物階数 地上9階  部屋階数 8階
建物構造 SRC 総戸/区画数 59
管理形態 全部委託  管理人日勤  管理組合有
間取内容 LDK 17畳 8階 1室 洋室 7畳 8階 1室 洋室 6畳 8階 1室 和室 6畳 8階 1室 
住宅保険料 修繕積立金 28180円
駐車場 5,500円 空有 要空き確認・サイズ制限あり・5,500円から14,700円 取引態様 専任
引渡/入居時期 期日指定 2026/04 上旬 現況 居住中
地目 宅地 用途地域 準工業地域
都市計画 市街化区域 地勢 平坦
建ぺい率 60% 容積率 200%
土地権利 所有権 接道状況
国土法届出 不要
周辺環境 東小学校  浦安中学校
設備・条件 ペット対応 ペット可能 角部屋 ガスコンロ 三口コンロ システムキッチン カウンターキッチン 給湯 追い焚き シャワー 浴室乾燥機 ユニットバス バス・トイレ別 温水洗浄便座 床暖房 トランクルーム W.INクローゼット 室内洗濯機置き場 オートロック TVドアホン 防犯カメラ 都市ガス 公営水道 排水下水 エレベータ 宅配ボックス 駐車場有 駐輪場 バルコニー フローリング タイル貼り バリアフリー
ルーフバルコニー使用料1,990円・ルーフバルコニー57.10㎡・アルコーブ7.65㎡
URL https://www.meiwa-js.jp/sale/2110818506100000001509/
物件番号 B039968 掲載期限日 2026/01/18
状態 売出中
資料請求購入

この物件の近くで売り出し中の物件

  • up
    市川市加藤新田 ヴェレーナシティ行徳Ⅱ街区 明和地所中古マンション 物件情報市川市加藤新田 ヴェレーナシティ行徳Ⅱ街区 明和地所中古マンション 物件情報
    3,980万円
  • new
    千葉市美浜区浜田1丁目 コロンブスシティ4番街 明和地所中古マンション 物件情報千葉市美浜区浜田1丁目 コロンブスシティ4番街 明和地所中古マンション 物件情報
    3,980万円
  • new
    浦安市入船3丁目 入船中央エステート1号棟 明和地所中古マンション 物件情報浦安市入船3丁目 入船中央エステート1号棟 明和地所中古マンション 物件情報
    5,480万円
  • new
    浦安市今川4丁目 今川団地38号棟 明和地所中古マンション 物件情報浦安市今川4丁目 今川団地38号棟 明和地所中古マンション 物件情報
    4,390万円
  • 浦安市富岡3丁目 富岡エステート4号棟 明和地所中古マンション 物件情報浦安市富岡3丁目 富岡エステート4号棟 明和地所中古マンション 物件情報
    3,680万円
※物件掲載内容と現況に相違がある場合は現況を優先と致します。

問合せ先

株式会社明和地所

お問い合わせ

    お名前

    メールアドレス

    電話番号

    お問い合わせ内容

    Fudousan Plugin Ver.6.7.2