浦安市入船1丁目 エアレジデンス新浦安 EAST棟 明和地所中古マンション 物件情報
0【29階角住戸】空と海、光が交差する新浦安のランドマーク。
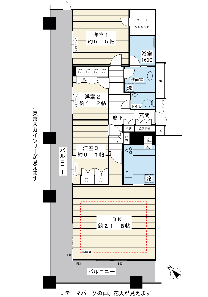
新浦安駅からペデストリアンデッキで直結徒歩4分。雨の日も傘を差さずにアクセスできる、地上32階建てタワーの29階部分です。100.62㎡のゆとりある角住戸からは、東京スカイツリーやテーマパークの山、夜空を彩る花火を望むパノラマが広がります。
エアレジデンス新浦安の29階以上のお部屋はプレミアム住戸。最大2.9mの天井高がもたらす開放感は、上階だけの特権です。
ニ方向を囲む37.12㎡のL型バルコニーにより、全居室がバルコニーに面した開放的な設計。キッチンにはディスポーザー、寝室には断熱・遮音に配慮したインナーサッシを備えています。給湯器(2024年)やマルチエアコン(2025年)は交換済みです。リビング、洋室1は最大天井高が2.9mあり開放感があります。また洋室2・3でも2.65mの天井高を確保し、数値以上の広がりを感じさせます。ペットとの暮らしも可能です(規約有)。
ワークルームやアトリエなど共用施設も充実。2階レセプションではコンシェルジュが暮らしをサポートし、24時間有人管理が静穏な日常を守ります。
本物件はリフォーム条件付き販売です。リフォームプランは自由にお選びいただけます。
決済までに株式会社アールデザインとの1200万円(税込)以上のリフォーム請負契約を締結していただくことが条件となります。期間内に契約が成立しない場合、売買契約は解除され、受領済みの金銭は全額返還されます。
ライフインフォメーション
ショッピング施設:イオン新浦安ショッピングセンター 160m
ショッピング施設:MONA新浦安 160m
コンビニ:ローソン 新浦安TKビルディング店 250m
ショッピング施設:アトレ新浦安 270m
幼稚園:浦安市立入船南認定こども園 210m
保育所:そらまめ保育園新浦安駅前 240m
小学校:浦安市立入船小学校 300m
中学校:浦安市立入船中学校 410m
役所:新浦安駅前行政サービスセンター 410m
警察署・交番:浦安警察署 新浦安駅前交番 250m
担当:中山晴雄
浦安で創業48年。お住み替えのご相談は明和地所にお任せください。長きにわたり浦安と共に歩み、Googleクチコミでも180件以上の評価をいただいております 。地元のプロフェッショナルとして、誠実にサポートいたします。
LINE@からのご相談・お問い合わせもできます!お気軽にお使いください♪
| エアレジデンス新浦安 EAST棟中古マンション |
|---|
|
| 築年月 | 2003/11 | 新築/中古 | 中古 |
|---|---|---|---|
| 面積 | 100.62m² | 計測方式 | 壁芯 |
| バルコニー | 37.12m² | 向き | 南西 |
| 建物階数 | 地上32階 | 部屋階数 | 29階 |
| 建物構造 | RC | 総戸/区画数 | |
| 管理形態 | 全部委託 管理人常駐 管理組合有 | ||
| 間取内容 | LDK 21.8畳 29階 1室 洋室 9.5畳 29階 1室 洋室 4.2畳 29階 1室 洋室 6.1畳 29階 1室 |
||
| 住宅保険料 | 年 | 修繕積立金 | 44380円 |
| 駐車場 | 10,000円 要空き確認・サイズ制限あり・月額10,000円から24,000円 | 取引態様 | 仲介 |
| 引渡/入居時期 | 相談 | 現況 | 空家 |
| 地目 | 宅地 | 用途地域 | 近隣商業地域 |
| 都市計画 | 市街化区域 | 地勢 | 平坦 |
| 建ぺい率 | 80% | 容積率 | 200% |
| 土地権利 | 所有権 | 接道状況 | |
| 国土法届出 | 不要 | ||
| 周辺環境 |
入船小学校
入船中学校 入船南認定こども園、MONA新浦安店 |
||
| 設備・条件 | ペット対応 ペット可能 角部屋 ごみ出し24時間OK ディスポーザー 給湯 追い焚き シャワー 床暖房 W.INクローゼット オートロック TVドアホン セキュリティシステム 防犯カメラ 都市ガス 公営水道 排水下水 エレベータ 宅配ボックス バルコニー タイル貼り バリアフリー キッズルーム フロントサービス オーナーズクラブ会費月額500円 |
||
| URL | https://www.meiwa-js.jp/sale/2110818506100000001689/ | ||
| 物件番号 | B040752 | 掲載期限日 | 2026/06/15 |
| 状態 | 売出中 | ||



































