浦安市堀江5丁目一戸建て 明和地所中古一戸建て 物件情報
0浦安市堀江5丁目!元町エリアの3階建て戸建
東京メトロ東西線「浦安」駅から徒歩15分。埋立地ではない元町地域 、閑静な住宅街に位置する一戸建てです。
教育施設が近く、子育て世代にもおすすめです。
南小学校まで徒歩3分(約170m)
堀江中学校まで徒歩10分(約740m)
空間と設備
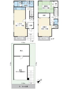
木造3階建の建物は、2LDKの間取り。
1階には約11.7帖のLDK、2階には約8.5帖の洋室と約6.0帖の和室を配置。開放的な居住空間を確保しています。
カーゲート付きの駐車場があります(サイズ要確認)。
車庫の奥には物入スペースがあり、収納に役立ちます。
1階と2階にバルコニーがあり、陽当たりや通風も良好です。
前面道路は幅員約5.9mの公道に接道しており、車の出し入れもスムーズです。
建築用地としても検討可能
現況での居住用としてはもちろん、建築用地としてもご検討いただけます。
ライフインフォメーション
浦安市立南小学校 170m
浦安市立堀江中学校 740m
愛和元町保育園 80m
アタック浦安堀江店 180m
ファミリーマート浦安堀江三丁目店 200m
セブンイレブン浦安富士見2丁目店 320m
マルエツ浦安店 520m
OK(オーケー) 浦安店 990m
ワイズマート浦安本店 1190m
浦安堀江郵便局 190m
担当:佐々木淳
閑静な住宅街に立地した一戸建てへお住み替えはいかがでしょうか。建築用の土地としてもご検討いただけます。歴史ある堀江エリアで、新しい生活を始めてみませんか。
LINE@からのご相談・お問い合わせもできます!お気軽にお使いください♪
| 浦安市堀江5丁目戸建て中古戸建 |
|---|
|
| 築年月 | 1995/10 | 新築/中古 | 中古 |
|---|---|---|---|
| 面積 | 88.80m² | 計測方式 | 内法 |
| バルコニー | m² | 向き | |
| 建物階数 | 地上3階 | 部屋階数 | 階 |
| 建物構造 | 木造 | 総戸/区画数 | |
| 間取内容 | LDK 1畳 11.7階 1室 和室 2畳 6.0階 1室 洋室 2畳 8.5階 1室 |
||
| 駐車場 | 空有 要サイズ確認 | 取引態様 | 専任 |
| 引渡/入居時期 | 相談 | 現況 | 空家 |
| 地目 | 宅地 | 用途地域 | 第一種中高層住居専用地域 |
| 都市計画 | 市街化区域 | 地勢 | 平坦 |
| 土地面積 | 54.30m² | 土地面積計測方式 | 公簿 |
| 私道負担面積 | 0m² | ||
| セットバック | 無 | セットバック量 | 0m² |
| 建ぺい率 | 60% | 容積率 | 200% |
| 土地権利 | 所有権 | 接道状況 | 一方 |
| 接道方向1 | 南東 | 接道間口1 | 5.6m |
| 接道種別1 | 公道 | 接道幅員1 | 5.9m |
| 国土法届出 | 不要 | ||
| 周辺環境 | 南小学校 堀江中学校 | ||
| 設備・条件 | ペット対応 ペット可能 ガスコンロ 給湯 都市ガス 公営水道 排水下水 駐車場有 バルコニー ※契約不適合責任免責※現況建物の建蔽率は超過しています |
||
| URL | https://www.meiwa-js.jp/sale/2110818506100000001600/ | ||
| 物件番号 | B039917 | 掲載期限日 | 2026/01/12 |
| 状態 | 売出中 | ||
※物件掲載内容と現況に相違がある場合は現況を優先と致します。
問合せ先
株式会社明和地所





































